Opis nieruchomości
KRAKÓW-CZYŻYNY
OK. GALERII HANDLOWEJ "M1"
please scroll down for english version...
II etap inwestycji, sprawdzonego na rynku małopolskim Dewelopera, to dwa 5-piętrowe budynki w atrakcyjnej lokalizacji na wschodzie Krakowa w dzielnicy Czyżyny w otoczeniu licznej zieleni miejskiej.
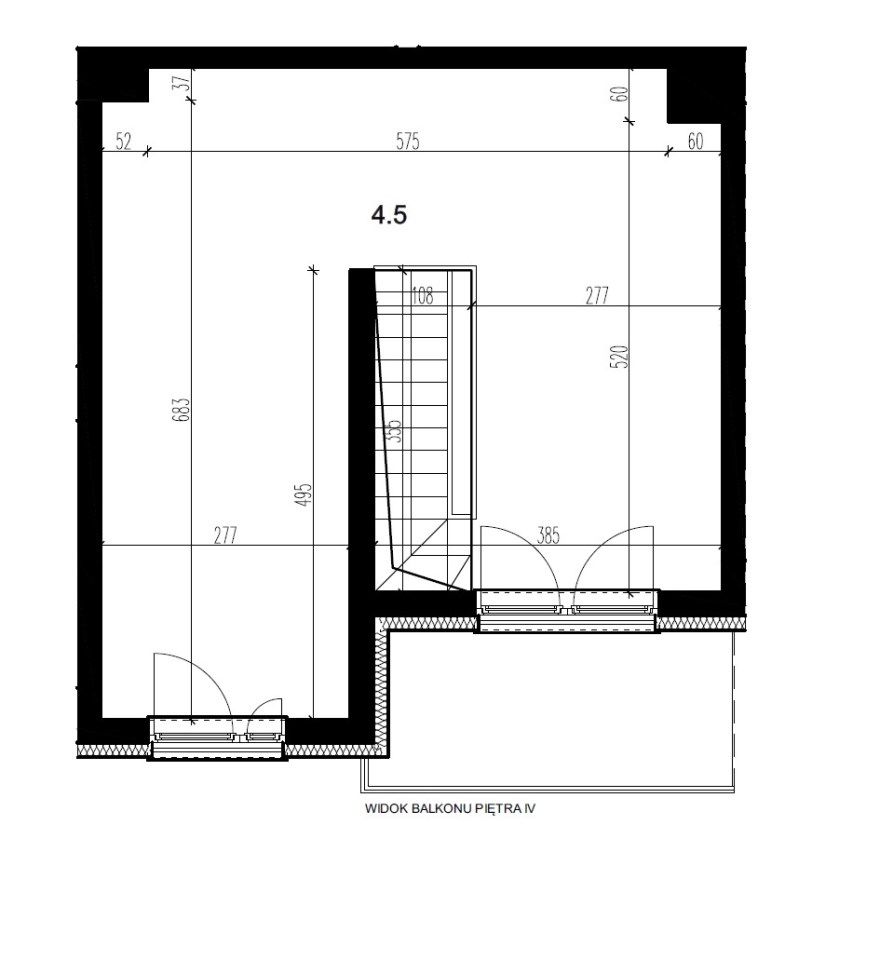
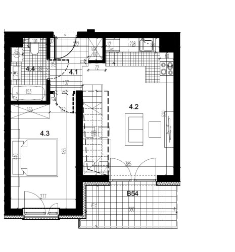
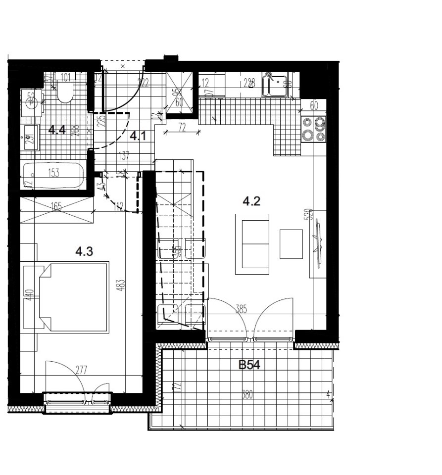
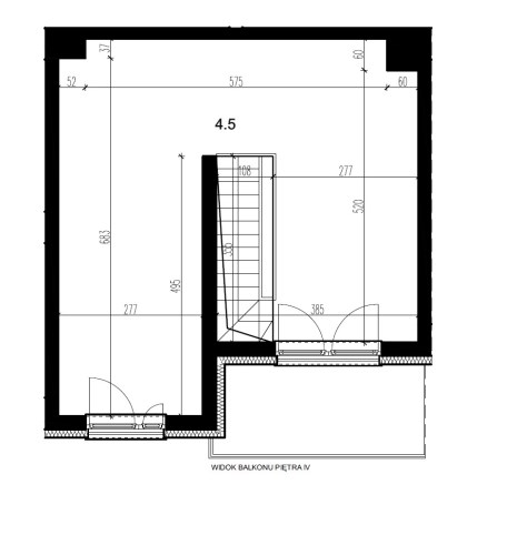
Przedmiotem sprzedaży jest dwupoziomowe mieszkanie o powierzchni 78,62 m² z balkonem zlokalizowane na IV i V piętrze (budynek 5-piętrowy z windą). Cena zawiera VAT. Mieszkania oddawane są w standardzie deweloperskim +.
0 % PROWIZJI DLA KUPUJĄCEGO
ZAPRASZAMY NA PREZENTACJE NA TERENIE INWESTYCJI
- stan deweloperski +
- klimatyzacja w cenie mieszkania - oferta specjalna ważna do 31.12.2025r.
- mieszkanie z antresolą (wydzielenie ścian wg własnej aranżacji; np. na górnym poziomie 2 sypialnie, łazienka i garderoba)
- mieszkanie sprzedawane wraz z pomieszczeniem magazynowym znajdującym się w garażu na poziomie "-1" o powierzchni 2,28m2 w cenie 7011zł (dodatkowy koszt który należy doliczyć do ceny mieszkania)
- atrakcyjna lokalizacja - w najbliższej okolicy m.in. "Centrum Handlowe M1", "Park Lotników Polskich", "Łąki Nowohuckie", szkoła, przedszkole, żłobek, infrastruktura handlowo-usługowa, itp.
- inwestycje realizuje Deweloper z ponad 30-letnim doświadczeniem w branży
- teren monitorowany
- bardzo dobra komunikacja z centrum miasta
- 5 linii autobusowych
- szeroki balkon o pow. 6,60m²
- ekspozycja okien: południe (mieszkanie nasłonecznione)
- wysokość mieszkań: 2,6m
- wysoki standard cieplny budynków (m.in. porotherm "25" + styropian grafitowy)
- wysoki standard inwestycji (drzwi zewnętrzne antywłamaniowe "Porta", okna trzyszybowe "Dako", windy cichobieżne, grzejniki, styropian akustyczny pomiędzy stropami, wysokiej klasy videodomofony, stanowiska do ładowania samochodów elektrycznych, oświetlenie i gniazdka także na balkonach itp.)
- ogrzewanie i ciepła woda z sieci miejskiej MPEC
- miejsca postojowe i komórki lokatorskie dostępne bezpośrednio z budynku w atrakcyjnej cenie (garaż dwupoziomowy, poziom "-1", poziom "-2")
- niskie koszty utrzymania
- plac zabaw na terenie osiedla
- możliwość wykończenia mieszkania "pod klucz" w jednym z wielu wariantów wykończeniowych
- bezpieczeństwo zakupu: rachunek powierniczy
CHCESZ WIEDZIEĆ WIĘCEJ NAPISZ LUB ZADZWOŃ
Opis oferty sporządzany jest na podstawie oględzin nieruchomości oraz informacji uzyskanych od Inwestora, może podlegać aktualizacji i nie stanowi oferty w rozumieniu art. 66 i następnych K.C.
Biuro Nieruchomości ALTAM
ul. Witosa 39 lok. E
30-612 Kraków
opiekun oferty: Krzysztof Warczak (licencja PwON: 22315)
tel. 534534918
mail: k.warczak@altam.com.pl
www.altam-nieruchomosci.com.pl
english version below:
NEW APARTMENTS
CRACOW-CZYŻYNY
NEARBY SHOPPING CENTER "M1"
Second stage of the investment of a well-proven developer which consist two 5-storey buildings located in Cracow-Czyżyny and surrounded by greenery.
The subject of sale is a two-storey apartment with an area of 78,62m² located on the fourth and fifth floor (5-storey building with an elevator). The price includes VAT. Apartments are in developer standard.
0% COMMISSION FOR THE BUYER
FEEL FREE TO WATCH A PRESENTATIONS IN THE INVESTMENT AREA
- developer standard (ask for more details)
- air conditioning is included in price - special offer valid until 31.12.2025r.
- two-storey apartment (possibility to create 2 bedrooms, bathroom and wardrobe on the upper level)
- the apartment is sold together with a storage room located in the underground garage on level “-1”, with an area of 2.28 m², at the price of PLN 7,011 (an additional cost to be added to the price of the apartment).
- attractive location - nearby "M1" Shopping Center , "Park Lotników Polskich", "Łąki Nowohuckie" Park, school, kindergarten, nursery, all facilities, etc.
- developer with over 30 years old experience
- monitored area
- very good communication with the city center (3 tram lines and 5 bus lines nearby)
- wide balcony with an area 6,60m²
- window exposure on south (a lot of sunlight)
- the height of the apartments: 2,6m
- high thermal standard of buildings (including porotherm "25" + graphite polystyrene)
- high standard of the investment (anti-bulglary entrance door "Porta", triple glazed windows "Dako", low-noise elevator, radiators, acustic polystyrene between the ceilings, high class video intercom, charging stations for electric cars, etc.)
- heating and hot water from the MPEC (municipal network; building without gas)
- underground parking spaces and storage rooms available directly from the building at an attractive price (underground level "-1" and "-2")
- low maintenance costs
- playground inside the estate
- possibility to buy an apartment in turn-key condition (ready to move in) - if you are interested in aks for more details
- safe purchase (escrow account)
IF YOU WANT TO KNOW MORE, DO NOT HESITATE TO WRITE OR CALL
The description of the offer is made on the basis of the visual inspection of the property and information obtained from the Investor, it may be updated and does not constitute an offer within the meaning of art. 66 and subsequent of Civil Code.
ALTAM Real Estate Agency
ul. Witosa 39 lok. E
30-612 Krakow
the offer's supervisor: Krzysztof Warczak (license PwON No. 22315)
tel. 534534918
mail: k.warczak@altam.com.pl
www.altam-nieruchomosci.com.pl
Disclaimer
The description of the offer available on the website is prepared on the basis of the visual inspection of the property and information obtained from the owner, may be updated and does not constitute an offer specified in art. 66 and subsequent of Civil Code.
Nota prawna
Opis oferty zawarty na stronie internetowej sporządzany jest na podstawie oględzin nieruchomości oraz informacji uzyskanych od właściciela, może podlegać aktualizacji i nie stanowi oferty określonej w art. 66 i następnych K.C.Szczegóły



